Forgotten Futures VII

From the Files of the FEDERATION INTELLIGENCE BUREAU
Bring Me the Head of Alexander Romanoff
or

They Stole Alexander's Brain!
A Startling Tale of the Abuse of Science

Marcus L. Rowland
Copyright © 2001, portions Copyright © 1993-2000



This material is published as shareware; if you find it useful you are asked to register; see the copyright page for information on why this is a good idea.

Back to main index
Back to adventure index

Contents


FEDERATION INTELLIGENCE BUREAU
F.I.B.

Name


Signature


SPECIAL AGENT
APRIL 1918. The adventurers are agents of the Federation Intelligence Bureau (F.I.B.). As such they should have appropriate skills such as Actor (disguise), Detective, etc. Some other skills that may be useful include Military Arms, Science (Biology or Forensic Science), Doctor (pathologist), Linguist (Russian) and Pilot. Agents may be of either sex, but women are rarely given responsibility for an operation or any mission that is likely to put them in danger. Unmarried Aerian women do not normally leave Aeria, but the F.I.B. does have other female agents. See
the Worldbook for more on the organisation of the F.I.B.

All agents are equipped with small automatic pistols, and any equipment appropriate to their skills that seems plausible; for example, a forensic scientist might carry field kit for collecting and analysing specimens, a portable microscope, etc. Prior to the adventure characters have been on leave or in training, now they are reporting in to the F.I.B.'s London offices for a new assignment.

Sources for the "look and feel" of this adventure include TV series about police organisations such as Dragnet, The FBI, Interpol, Scotland Yard etc. Russian material came from several sources including tourist guides, Massie's Nicholas and Alexandra, and Steve Jackson Games GURPS Russia.

Printouts of the maps and plans will probably be needed. "F.I.B. Identification Cards" are fun props to give to each player.

Players Information
Back to contents

Try to read this in the style of the introduction to a 1950s TV series such as Dragnet:

FOLLOWING the fall of the Russian Empire in 1904, the Anglo-Saxon Federation was formed to carry on the work of revolutionary socialism and disarmament. Although the main enemies of freedom and peace were defeated, there were still many opposed to the socialist cause; plutocrats and aristocrats unwilling to relinquish their fortunes and lands, the criminal classes, clandestine supporters of the old order in Russia, America, and elsewhere.

In 1910, to combat these counter-revolutionary tendencies and deal with the activities of external powers such as the Japanese and Moslem Empires, the Federation Council authorised the creation of the Federation Intelligence Bureau, with headquarters in Washington, London, Berlin and St. Petersburg. These are the men and women of the Bureau, working tirelessly in the service of the Federation, socialism and mankind.

London, Monday 8th April 1918. 8.30 A.M.

All of you are F.I.B. agents, reporting for your new assignment at the Bureau's London offices, the former police headquarters at Scotland Yard. Some of you may be experienced agents, returning from leave to a new posting. Others may be newcomers to the Bureau. None of you have know what you will be doing here - London houses few counter-revolutionary elements, and it's generally regarded as an easy posting for invalids and officers close to retirement, which applies to none of you.

After a short wait you're taken through to the offices of Colonel Eric Weatherby, the Regional Superintendent who controls F.I.B. operations in Europe. He's a grizzled veteran of the Revolution, blind in one eye, who glances at your records for a few moments before speaking.

"Good morning. You've been assigned to this office for a special mission of unusual sensitivity, which is being mounted from London to avoid publicity. I want you [choose a male agent, preferably Aerian, who is the most experienced or has the highest Detective skill] to command the operation; you'll have the substantive rank of Field Commander for the duration of the mission.

"As you probably know, Tsar Alexander Romanoff was buried in Siberia in 1905. The prison mine there was closed in 1915 and the region was opened to tourism the following year, but it has become apparent that some of the tourists visiting the site are sympathetic to the Romanoff cause. Unfortunately the grave was marked when he died, and visitors have been leaving flowers and wreaths. It sets a bad precedent; we want the Romanoffs to be ignored or reviled, not treated as martyrs.

"Accordingly, the Council has decided to remove the body and obliterate the site before the Spring thaw and the start of the tourist season. To avoid arousing additional counter-revolutionary sympathies, it must appear that the grave was destroyed by some form of natural disaster, such as a landslide; I understand that the terain is favourable for this. A mining engineer will accompany you; he'll handle the geological and demolitions side of things, though he may need help, of course. He'll be under your instructions. Romanoff's body is to be bought back to London for cremation, and the ashes will then be dispersed at sea.

"At this time of year there should be nobody within hundreds of miles, but obviously you must make sure that nothing you do is reported elsewhere. Weather forecasts say that conditions will probably be calm there by Friday, and should remain so for two or three days. I've arranged for you to use the air-ship Raphael, with an announced destination of Hong Kong. Assuming no problems, if you leave tomorrow morning you should be in Siberia for the start of the clear weather. Raphael has the capacity you'll need, and Captain Valois and her crew are totally discreet. Once you finish in Siberia go on to Hong Kong; you're to pick up some prisoners there and bring them back to London for questioning - we'll find someone suitable by the time you get there.

"If for any reason you encounter insoluble problems you must obliterate any trace of your activities and report back to me. In view of the sensitive nature of this mission you should use secure facilities outside Russia for any messages; go on to Hong Kong and send a coded telegram from our offices, or report here in person if time permits. If at all possible avoid involving our offices in Russia; the Regional Superintendent for Russia at St. Petersburg knows about your mission, but the Council feels it is inappropriate for them to be involved.

"If there are no questions I'd suggest you draw up plans and order any equipment you need, get a good night's sleep, then set off tomorrow morning."

Referee's Information
Back to contents

When the agents reach Siberia they will find that the grave has recently been opened; the body has been thawed, and the brain and spinal cord removed. They will also discover that the body was originally buried in permafrost and seems to be remarkably well-preserved despite the passage of time. These facts should set alarm bells ringing, especially when it is learned that an eminent neurologist with an interest in transplant surgery has gone missing. Every instinct should be shrieking "Fiendish Tsarist plot."

In fact the plot is the work of one man, Professor Ioseph Sverdlov, formerly one of the Tsarevitch Nicholas' doctors and generally regarded as one of the most eminent neurologists in Russia. When the Tsar fell he went to work at St. Petersburg University Hospital, teaching neurology and neurosurgery. In the last seven years he has published a series of papers on the regeneration of neural tissues and on grafting tissues from one animal to another.

Sverdlov's reputation rides solely on his association with the Tsar and his treatment of Nicholas (who did slowly recover from his stroke, but would have done so anyway). Most of his work since the fall of the Tsar has been slipshod, experimental results fudged to make his techniques seem better than they are. He is also an extremely greedy man.

Five years ago he conceived the idea of an immense fraud. Most of his recent results were faked to give the impression that it was possible to transplant a brain successfully, even one that has been frozen for an extended period. Knowing that two of his students were Tsarist sympathisers, he asked enough "innocent" questions about the circumstances of the Tsar's burial to arouse the interest of a wealthy Tsarist group, which is now funding him, in the belief that he will eventually be able to transplant the brain into another body.

Sverdlov has a secret laboratory in a Tsarist-owned dacha on the island of Kronstadt, near St. Petersburg, where he pretends to conduct preliminary experiments (which need experimental animals such as rats, dogs and apes, and incredibly expensive materials such as radium needles, platinum electrodes, and exotic chemicals, all of which are fakes) and prepares for the "operation". The brain is kept in a bubbling vat of iced saline solution in the best Hammer Horror tradition; it's dead tissue, and Sverdlov has secretly injected it with liquid rubber and formalin to stop it falling apart.

Already the experiments have cost more than a hundred thousand roubles, mostly spent with a Moscow laboratory supply house owned by Sverdlov's cousin who is party to the fraud. Eventually Sverdlov intends to pretend to transplant the brain into the body of an imbecile; in fact the "imbecile" is one of his associates, who has spent months learning everything possible about the Tsar and his private life, and the operation will be faked using conjuring techniques and the general reluctance of the layman to watch closely while someone's head is cut open and the brain is ripped out.

Once the impostor is "recovering" from the operation he will pretend a degree of brain damage and partial amnesia. Sverdlov will need more funds to work on the cure, of course... with luck this should be good for a few million before he and his associates have to cut and run.

Meanwhile the adventurers will probably be on the trail of "Alexander"; when they realise the truth they must decide whether to bring Sverdlov down right away, or use him to round up his counter-revolutionary backers.

Three optional plots are briefly described at the end of the adventure; one in which Sverdlov can really reanimate the brain, one in which he is working for the Federation, and one in which the adventurers are Tsarist sympathisers caught by Sverdlov's scam.

Two highly-skilled NPCs appear below: McCone, a mining engineer, geologist and explosives expert, and Captain Valois of the air-ship Raphael. They are present to provide expertise that the adventurers may lack. If any of the adventurers have appropriate skills these NPCs should be omitted. If they are used they should not be allowed to dominate the adventure.

Raphael To Siberia
Back to contents

LET the adventurers spend a reasonable amount of time preparing for the mission. They will probably want to know more about the site and the circumstances of Alexander's death, and draw up a shopping list of supplies.

Kara, a gold-mining district in East Siberia, 300 miles from Chita, of which the mines were the private property of the Tsar and until the Revolution were worked by convicts, who were often disgracefully treated, many of them being political offenders. Following the 1904 war Alexander Romanoff and the other rulers of Russia were exiled to Kara; Romanoff died on arrival. The mines were closed when the last prisoners were released, and recently declared a Federation Memorial to the Victims of Tsarist Oppression. The site is occasionally visited by tourists and relatives of former inmates when the nearby river is navigable in summer.
The Federation Encyclopaedia 1916

Following his defeat Alexander Romanoff and the other leaders of Russia and their families were treated in exactly the same manner as prisoners under their rule; they were taken in chains by rail from Moscow to Ekaterinenburg [AR 48], then marched along the Great Siberian Road to Tiumen, Tomsk, Irkutsk, over the ice of Lake Baikal, through the Trans-Baikal Provinces, to the valley of the Kara and its Lower Diggings [AR Ep.]. The journey took nearly a year and more than half of the prisoners died en route due to cold, hunger, and the knout. Alexander collapsed as he was being sentenced to hard labour in the mines, and was buried unceremoniously in the graveyard down-river from the mines. Years later the last survivors were released, and the mines were then closed. In summer tourists visit the mines by river; most come to mourn members of their family killed by the Tsars, and visit the grave if it is known.

The documents available include a tourist map which shows the location of Alexander's grave (see The Mines of Kara below); it's obvious that anything that obliterates the Romanoff grave will probably cover most of the rest of the cemetery, the graves of hundreds of socialist martyrs. It's unfortunate but necessary. There is also a copy of Alexander's prison medical record, which can be used to positively identify the body, also several geological maps and charts, which will mean very little to anyone without appropriate training. Herbert McCone, the mining engineer, isn't present as the agents prepare their plans; he's loading his equipment and explosives onto the Raphael, which has landed on the Thames and is moored at the dock behind Scotland Yard (guarded by Federation soldiers and two River Police boats), and won't be finished until the afternoon. He won't appreciate being disturbed before the work is completed, especially if he is handling cylinders of Arnold's Explosive when interrupted...

McCone is a Scots-born Aerian citizen; he's a loyal veteran of the Revolution, who started out building bombs for the Terror. He's very good at demolitions work, but has no experience of making his explosions look like accidents; without supervision he may leave packaging and other tell-tale junk in the debris.

McCone's examination of the map has suggested some possibilities; there is a spoil-heap between the graves and the cliffs, which might be made to slip, and the cliffs are honeycombed with mining tunnels. To McCone's expert eye there are several points where the rock might be weak and plausibly collapse; it is impossible to be certain without examining the site.

It's likely that the agents will want to pack all sorts of exotic equipment for the mission; anything reasonable should be available, provided that the total capacity of the Raphael isn't exceeded. McCone has already grabbed all the spare magazine space for his explosives, and a ton of hold space for equipment such as picks and shovels, pit props, two pneumatic drills (powered from the air compressors aboard the Raphael), and other tools. Naturally everyone will need cold weather clothing, snow shoes or skis, and other winter gear. Siberia has wolves, bears, and tigers; a few good rifles are a wise precaution. Signalling equipment may be requested; radio doesn't work in this world, but there are field telephones, small heliograph mirrors (use the Morse Code skill), flare guns, and smoke sticks. The latter are usually used to signal from the ground to an air-ship. Provided that the request makes a little sense, that the equipment or supplies are available somewhere in London, and that it's a reasonable time of day, they will be ready the following morning. Late-night orders won't arrive so quickly, of course! The Field Commander will be given a code book, containing a simple cipher system which should be used for any telegram; it isn't an unbreakable code, but is complex enough to deter casual deciphering. If the code book falls into the wrong hands any messages that have been sent can be read.

If the adventurers want more information about the site, the Bureau can find a veteran who was imprisoned there until the Revolution. Describe the hardship and back-breaking labour required of it inhabitants, who were kept chained in the mines for weeks on end, the punishment of anyone who offended a guard or tried to escape, families torn apart, and all of the other horrors mentioned in The Angel of The Revolution [AR 49]. He can't say much about the mines post 1905, but when he was there parts of the mines caved in on several occasions; usually those trapped were left to die, unless they were near a rich vein of gold.

Any other information requested should be invented or found in the worldbook as seems appropriate. Some points that may crop up:

The following morning the Raphael is ready to depart at nine, unless someone has changed the plan. Valois will suggest a fast course that avoids all known settlements, arriving over the mines a little before dawn on Friday and landing as soon as there is enough light for safety. The downside is that this is a Great Circle course, going high into the Arctic before curving back down to Siberia, and there is a possibility of storms and a certainty of freezing cold along the way. The alternative is to stay further South, avoiding the worst of the ice and weather, but taking longer to reach the mines, arriving on Friday evening. There is slightly more chance that the air-ship will be seen en route, and less time on the ground before the good weather ends.

WARNING
Aerian Citizens ONLY
Beyond This Point

By Order of the Federation Council
Ref. Federation Directive 1905-2-iii


Maximum Penalties for Violation
Imprisonment or Death
The Raphael is a small air-ship built to the same plan as the Ariel class, but is faster and carries equipment for intelligence missions. She has her own officers and crew, but if possible involve the agents in her operation if they are Aerians; for example, anyone with Pilot skill might be asked to relieve the helmsman for an hour or two, or lend a hand with navigation, Mechanics might be asked to help with damage control after a storm, and so forth. Before boarding all non-Aerians will be told to limit themselves to the deck, saloon and cabins, and stay out of the engine room and other machinery spaces. This isn't just a polite request, it's Federation law; Aerians are the only people allowed access to the secrets of flight. There is always at least one armed man on duty in the sensitive areas, anyone caught snooping will be arrested and questioned. This will at a minimum result in a reprimand and ruin any chance of promotion for several years to come. If anyone is caught spying or committing sabotage they will be arrested, tried, and shot as soon as the Captain has reviewed the case. There is no appeal.

Character details for the crew of the Raphael are at the end of the adventure. Note that although the Raphael is designed for intelligence missions, the crew are members of the Federation Navy, not intelligence agents; it's up to the Field Commander in charge to direct the mission, Captain Valois will then make suggestions if necessary and interpret his orders in whatever manner seems to make sense; for example, if he knows that he's been asked to do something suicidally dangerous, he will (politely) request clarification or suggest an alternative. While he outranks the agents he is very reluctant to pull rank, but it may be a good idea to mention that he occasionally seems to make notes on the progress of the mission, with the implication that they will end up in the Bureau's files on the agents. He should make more notes about the Field Commander than anyone else.

Raphael
Ariel-class plans. The Ariel.
The Raphael is a new ship, a one-off design built to look like the old Ariel-class vessels. She is designed for intelligence operations. To the uninitiated she appears to be an old, slow, small ship. There are numerous modifications; some of the hold space is replaced by extra cabins, her hull is painted to minimise visibility when she is at high altitude and her equipment includes camouflage netting for concealment on the ground. She carries a comprehensive armoury of Maxim guns, rifles and other small arms, a darkroom and photographic equipment, and a supply of homing pigeons trained to fly to roosts at various Federation headquarters. Her engine design allows more power to be diverted to forward propulsion, so that although total power remains unchanged the top speed is improved - note that this means that at top speed the engines are operating at near-full capacity, and need constant attention.
  • 70 ft. seaworthy hull, beam 12 ft., with ram, Arnold's engines, 3 fan wheels, air-planes, searchlight
  • 30 tons loaded weight, 250 PR, 1380 MD, 24 BODY
  • 6 crew, 6 officers, wardroom for 12, 6 spare cabins, galley, 5 tons cargo, bridge
  • 180 MPH, range 12,000 miles, max 5000 ft. on fans, 7,000 ft. on air-planes, maximum lift 45 tons on fans.
  • 4 x guns (6 miles - 2 x fore, 2 x aft), 400 rounds ammunition, 4 x Maxim guns, small arms, scuttling charges

The journey out to Siberia can be eventful or dull as you prefer, but try to set the scene effectively; the Raphael slowly rising from the Thames, watched by hundreds of spectators on the banks and boats who cheer as she leaves the water, rising further into the air then accelerating East over London towards the coast and the North Sea:

There was no vibration or grinding, as would have been the case in starting a steamer, but only a soft whirring humming sound, that rose several degrees in pitch as the engines gained speed, and the fan-wheels revolved faster and faster until they sang in the air, and the Ariel rose without a jar or a tremor from the ground, slowly at first, and then more and more swiftly, until Colston saw the ground sinking rapidly beneath him...
[AR 10]

As the Raphael accelerates forward the fan-wheels gradually stop and are lowered down the masts. By now there is a strong breeze along the deck; everyone must go into the wardroom or go below, since anything remaining on deck will be swept away by the wind. If anyone has bought any equipment you didn't like it can be "accidentally" left on deck, a good way to get rid of it...

Some incidents to enliven the journey:

When the Raphael is thirty miles from the mines Captain Valois slows to circle the site at maximum altitude, issuing binoculars and telescopes to check that there is nobody in the area. A plume of smoke is visible about twenty miles East of the mines; the most powerful telescope shows a small group of tents with reindeer tethered nearby, the unmistakable sign of Siberian nomads. Nothing else is visible.

The Field Commander may want to do something about the nomads; although they're twenty miles away sound travels a long way over the Siberian snows, and the team plan to use pneumatic drills and explosives. There are sixteen nomads including women and children; they have absolutely no interest in the Romanoffs or the Federation but it is conceivable that they could later be an embarrassment. Valois won't be happy about a massacre (moral problems aside, there would inevitably be evidence of the atrocity, which would make concealing the mission even more difficult than it already is) but if the Field Commander is adamant he will reluctantly comply. In fact the nomads haven't been near the mines and are moving away from them - this should be obvious from their tracks if anyone bothers to look for them - and will be well out of hearing range in a few hours.

Once the Raphael reaches the mines Valois finds a flat-looking area East of the mines, near the guard's quarters, and slowly brings her in for a gentle landing. Snow swirls up in a momentary blizzard as she lands, gradually settling to reveal the brutal desolation of the mines.

The Mines of Kara
Back to contents

map of mines THE mission has three objectives; to recover the body of Alexander, to obliterate his grave, and to do both without leaving any obvious sign that this is the result of human intervention. Since the body has already been disturbed there's no hope of succeeding in all respects, but naturally the agents don't know this at first.

When the Raphael lands the Field Commander should start to organise the operation; hopefully McCone (or someone with similar skills) will be told to start preparations for obliterating the grave, while everyone else finds it and removes the body.

Kara is further North than Scotland. Despite bright sunshine the weather is cold; 10°F (about -12°C), with a light breeze bringing the effective temperature down a couple more degrees. At night the temperature drops to 5°F (about -15°C). The ground is bare rock or rock-hard frozen soil, covered in deep snow drifts, interrupted by occasional bare bushes and trees. The cliffs are pitted with dozens of openings, some only going yards into the rock, others leading to the mines. There are a few dilapidated buildings; the guards' quarters, stables, and the plant once used to crush the rock to extract gold. Most are little more than shells, their roofs crushed by years of neglect and 5 ft. snowfalls. If anyone forgot to bring cold-weather clothing the steward digs into a locker and finds some fleece-lined jackets and thick mittens, normally used for working on the masts etc. at high altitudes. They aren't as good as proper cold-weather clothing, but are better than nothing.

The geology is more difficult than it appears from the maps; since the last survey some of the workings have collapsed, and the cliffs near the cemetery are poised to collapse backwards away from the river. Even surveying the site is dangerous, and it is obvious that any attempt to blow the cliff as originally planned is doomed to fail; it can be done, although McCone barely has enough explosives, but preparing the rock will require extensive drilling and it won't look like any sort of natural collapse. Without the cliffs collapsing the lie of the ground between the cliff and the cemetery is wrong for the spoil heap to slide over the entire cemetery. In short, there is no obvious way to make it work and look like a natural disaster. Finding this out will take a full day. If an agent is doing the geology there should be one or two scares during the investigation; falling rocks narrowly missing the adventurer, the ominous creak of rotten pit props, and other warnings of the instability of the site. There are occasional streaks of what might possibly be gold in the tunnel walls, but nothing that looks good enough for commercial exploitation. The tunnels are a monument to human misery, especially the dank caves used to house the prisoners, with rows of rings for tethering their chains at night. Any agent with a vestige of human sentiment should want to see them obliterated.

If the agents do want to press on with obliterating the grave once the geological problems are known, there are two possibilities:

If one of the agents is doing the geology it takes a full day to exhaust the possibilities of the mine site, then finding the first solution is Difficulty 4, the second is Difficulty 6, -1 per hour spent examining the maps and thinking about the problem. Making either scheme work will take a full day, with everyone helping to dig holes for the charges and prepare for blasting.

Meanwhile the rest of the team should find out that there is another problem. Although Alexander's grave is marked on the map, it (and the rest of the cemetery) are currently under several feet of snow. Removing the snow and finding the grave with the aid of shovels and brooms should be a slow laborious process; although only a few of the graves are marked, there may be several false alarms before the right one is found. For each hour passing roll 2D6, -1 per hour;

2-
Alexander's grave is found. See below.
3-5
A grave with a marker is found - it isn't Alexander's, but is one of those shown in the tourist map, which lists the location of the graves of notable martyrs of the revolution; the approximate direction of Alexander's grave can be deduced from the map, so make the next roll at -2.
6-11
Nothing found
12
On a natural 12 (ignore modifiers) a grave with an unreadable marker is found - it isn't Alexander's, but that can only be determined by exhuming it. The body is a massively-built man, but 2" shorter than Alexander and has better teeth if medical records are checked.
Make this roll every half hour if the crew of the Raphael are helping; at least two officers and three crew will remain aboard for maintenance, to cook, for security, etc. Excavating a coffin from the frozen ground takes 20-30 minutes - this can be cut to 5-10 minutes if McCone's pneumatic drills are used.

Troubleshooting: The adventurers have been ordered to recover the body and obliterate the grave; it's possible that they may excavate the wrong grave without realising their mistake and somehow fail to check the identity of the occupant. The medical records they carry should prevent any mistakes; Alexander was over 6 ft. tall and powerfully built, more massive than anyone else they will find buried here. If all else fails Valois should take a look at the body; he was present at Alexander's trial at the end of the war, and will remember enough to prevent mistakes.

There is a much faster way to find the grave, which the agents may think of; land the air-ship near the cemetery and use its propellers to blow the snow away. Doing this will have an unexpected result...

The graveyard is covered in deep snow, which is packed hard in most areas. However, the last foot or so fell within the last few weeks, and is loose powder. When the snow is blown away the loose snow will be dislodged, the deeper snow will remain - except in one place, an area of a few square yards covering several graves including Alexander's, where it will blow or sweep away easily. If anyone thinks about this idly they will probably be pleased; more consideration should suggest that this coincidence isn't very likely. Checking the packed snow around the edges of the clear area will reveal spade marks. Similarly, the ground is iron-hard over the rest of the site, but when the agents dig up Alexander's grave they will find that the soil is loose and easily moved. Again, there are a few spade and pick marks, although some attempt has been made to cover them up; the soil is frozen so hard that it is almost impossible to erase them completely.

By the time they reach the coffin the agents will probably suspect that the body isn't there; finding that the crude crate has been broken open will seem to confirm it, until it is opened. The body is still there, and has been covered with a blanket (there's some snow on it inside the coffin). When the blanket is removed the horror within will be revealed.

The frozen body of a massively-built man is in the coffin - but someone seems to have removed the top and back of the skull and the brain, including the eyes. If it's turned over the agents will find that the vertebrae have been cut open and the spinal cord removed with the brain; the wound is extrenely neat. Anyone with the Doctor skill will see the marks of a trephine, surgical saw and chisel on the skull; it looks like a very skillful operation. The marks on the vertebrae are similar.

The agents may wonder if the body is Alexander at all, but his dossier includes dental records; the mouth is open and the teeth are a perfect match. There are also several small scars and other marks which match the description in the file.

It should be obvious that the grave has been robbed within the last few weeks; given this clue it is probable that the agents will look for evidence. It's there to be found:

Having made some or all of these discoveries (and ignoring the fact that the intruders on the site had horses, not reindeer) the adventurers may decide to interrogate the nomads, if they haven't done so already. They will learn nothing useful. They speak only one language, the extremely obscure Tunga dialect (see FF III adventures) and unless someone happens to know this language communication will be very difficult; in any case they know nothing. Once the nomads have been contacted the Field Commander must decide what to do about them, as above.

It has snowed several times recently, and tracks have been covered. They can be revealed by very gentle sweeping, or by using the Raphael to blast the loose snow away. There are dozens of footprints around the hut, as well as the hoof-prints (and occasional dung) of horses and the tracks of a sleigh on the road that leads (through hundreds of miles of wilderness) to Chita.

Before anyone sets off in pursuit, or leaves for any other reason, find out what the agents are doing about their original mission and the body. A forensic scientist can easily determine that the body was frozen and thawed at least once; the condition of the skin makes this obvious. Nevertheless it is still very well preserved, suggesting that it has been frozen for most of the time since Alexander's death. This is all that can be determined without full laboratory facilities. To get it back to a laboratory without further deterioration it must be packed in ice; fortunately there is no shortage in Siberia.

If the agents have abandoned the idea of obliterating the grave they need to find some way of covering their own tracks; if not, it is possible that someone will claim that the Federation removed Alexander's body. Burying the coffin, filling the grave with earth, and pouring in water to freeze and bind it together will make it a little less obvious that the grave has been disturbed; snow can be packed down over the grave until it is nearly as hard as the surrounding areas.

At this point the main options are to try to follow the tracks from the camp, to assume that the grave-robbers were headed for Chita and go there directly, or to report back to Colonel Weatherby, either in person or by telegraph from Chita (two hours away), from Hong Kong (twelve hours due south), or Berlin (two days West). A less obvious option is to tap into the telegraph lines along the Trans-Siberian railway and send a coded message to London, while pretending that it originated elsewhere.

Troubleshooting: The agents may decide to cover up the problem by claiming that they couldn't find the grave, and obliterate the cemetery without pursuing the matter further. Obviously this is dereliction of duty; moreover, McCone and Captain Valois will report the problem at the earliest opportunity. This ends the case for the adventurers, who will all be demoted and disciplined; the Field Commander should be charged with dereliction of duty, convicted, and sentenced to a long term of imprisonment. Another team of agents will be assigned to clear up the mess.

Cold Trail
Back to contents

Chita, (pop. 200,000) city and province of eastern Russia at confluence of Chita and Ingoda rivers. Industries including light machinery, railway engines and rolling stock, textiles, leather, sheepskin, mining, foodstuffs, trading centre with China, linked to Trans-Siberian Railway 1900, Chinese Eastern Railway 1903. Centre for forced settlement of Siberia under Tsars, Decembrist exiles were largely responsible for the industrialisation of the city.
The Federation Encyclopaedia 1916

IT takes about a week to reach Chita by sleigh, much longer on foot; there is only one road, leading to Chita then Lake Baikal and Irkutsk, but in winter a sleigh could easily go cross-country instead, and it soon becomes apparent that it has done so. Following the trail simply isn't practical; the agents can try it if they like, but as soon as it passes through a forest the air-ship won't be able to fly low enough to continue to reveal the track. Let them get about 50 miles, over several hours, before they lose the trail completely.

In fact the body-snatchers didn't go to Chita; the Trans-Siberian Railway is closer to the mines, so they went directly to the line, flagged down a train two weeks ago, and reached St. Petersburg a week ago.

If the Raphael goes to Chita openly she will cause an immense sensation - it's the first time an air-ship has ever visited the town. The agents have every right to be there, of course - F.I.B. agents go wherever they like - but they will probably need some sort of explanation that doesn't reveal their mission; if they have any sense they will avoid saying anything about the grave robbery. Regardless of their story, the police in Chita will soon send word to the nearest F.I.B. local office, in Irkutsk, which could lead to some awkward repercussions; nobody except the Regional Director in St. Petersburg has any idea that agents are working outside the chain of command in the area he controls. Without official notification the Irkutsk office could assume that the agents are impostors who have somehow stolen an air-ship, or guess that some sort of covert operation is in progress and foul things up by trying to be too helpful. Either might result in the arrival of an air-ship from St. Petersburg, but it will take at least 36-48 hours.

If they go in undercover (for example, by stopping at a farm some distance from the city and hiring a wagon) they will soon be noticed as strangers. Although the Federation encourages travel, tourists are very rare in Chita at this time of year - it isn't a very interesting town, and even in summer visitors seldom stay longer than it takes to change trains or wait for the next caravan to China or river steamer to Kara. At this time of year they are virtually unknown. Word of their arrival by air-ship will leak back to the town eventually, but they will probably be gone by the time it becomes common knowledge.

If the adventurers have destroyed the mines they have a ready-made excuse to visit Chita; they can pretend that they visited the mines while on route to Hong Kong, to lay a wreath to the Victims of Imperialist Oppression, found the place in ruins, and want to report it to the authorities. If they've left evidence of illegal mining they even have a reason to ask questions about strangers in the area. Don't suggest this explanation, but give the agents a Bonus point if they think of it for themselves. Any other good excuse should also be rewarded.

The agents will be able to find out the following if they go to the right places and ask the right questions:

Although none of the witnesses are artists, they can work with a police artist (or a character with the Artist skill) to produce sketches of the suspects; these won't be good enough to identify them from F.I.B. records, but once a record is found it will be obvious that it is the same person.

If Colonel Weatherby is contacted over open telegraph lines from Russia he will be annoyed, but do his best to help. His office uses the telegraphic address of "081204 London" (the number is the date of the end of the 1904 war), so it isn't immediately apparent that it's F.I.B. headquarters, although clever telegraphers may guess that the number has some significance:

Messages sent from Hong Kong or Berlin don't have these snags, but it will take much longer for the Raphael to get to these offices; twelve hours to Hong Kong (same time zone as Chita) or two days to Berlin (two hours ahead of London).

Weatherby will want the agents to visit Chita and make enquiries if they haven't already done so, keep the corpse frozen and hand it over to the laboratory in Berlin or London at the earliest opportunity (Hong Kong is a much smaller base with poorer facilities, St. Petersburg has the facilities but the body must not be seen by anyone anywhere in Russia), and follow up any trail they find in Chita. Naturally they must say nothing about their mission; any enquiries should be referred to the Regional Director's office in St. Petersburg. He leaves the precise details to the agents, who should be given the impression that he expects them to be able to handle things without huge amounts of help.

If the Gyeroy Lock Company in Moscow is contacted, they can trace the serial number CP 32455. The lock was one of a batch of 1500 shipped to St. Petersburg last September. There is no mechanism for tracing it more precisely; dozens of shops in St. Petersburg sell them, but are unlikely to record the number - the only reason it's there is so that extra keys can be supplied by mail order from the factory if needed.

If these clues are put together it should be obvious that whatever is going on has probably been mounted from St. Petersburg, or someone has gone to a lot of trouble to make it look like that is the case. Since an attempt has been made to conceal the theft of the brain, it should seem unlikely that there has also been an attempt to divert attention in a way that might attract official interest.

Troubleshooting: If the agents don't look for clues or make enquiries in Chita it is remotely possible that they will fail to realise that there is a connection to St. Petersburg. It isn't likely, but it's possible. If this occurs, they should be reminded that they have a body to deliver for autopsy; the pathologist's discoveries may put them back on track.

At this point the agents may think of travelling to St. Petersburg and looking for clues while sending the Raphael on to Berlin or London with the body. Travel by rail from Chita takes more than a week and will be uncomfortable, but it gets the agents to St. Petersburg without the glare of publicity. However, they will learn nothing useful on the train or in any of the cities along the way. A better alternative is to fly to Berlin, deliver the body for an autopsy, and either wait for the results or travel to St. Petersburg by rail, with the results to follow by telegram or messenger. If the agents fly directly to St. Petersburg the arrival of an air-ship will naturally attract attention, and the agents will be expected to check in with the local F.I.B. office.

The Body In Question
Back to contents

This section can occur entirely off-stage, with the results delivered to the agents after two days, or it can be role-played.

WHEN the body is delivered the pathologists will go to work straight away; photographing the skull and back incisions while the body is still frozen, then carefully thawing it for a full autopsy. It will take two days. They should eventually produce the following findings

Agents with medical skills may participate if present; others may want to watch, but it isn't a pleasant sight and they won't learn anything useful. It ought to be obvious that the operation was performed by someone who knew exactly what he was doing, and had impressive skills. The use of a rotating saw is highly unusual.

If the Lancet and other medical journals are checked (by the agents or the pathologist), or any expert is consulted, the name of Ioseph Sverdlov will soon be mentioned. He is a neurologist and neurosurgeon who treated the Tsarevitch Nicholas before the war. He wasn't in any way political or involved in the crimes of the Romanoffs, and wasn't arrested with them. When the Tsar fell he was Head of Neurology at St. Petersburg University Hospital. In the last seven years he has published a series of papers on the regeneration of neural tissues and on grafting tissues from one animal to another. His last paper described an experiment involving the transplantation of the brain of a dog from one body to another. It survived for several days. Others have not been able to repeat his successes. The brain removal described in the paper was very similar to that performed on the Tsar's corpse, and his equipment included a hydraulic rotating saw which would have left marks like those on the bones. It seems likely that the surgeon was Sverdlov, or someone using his technique.

Sverdlov resigned in August 1917, without explanation, and has since dropped out of sight. If consulted, F.I.B. St. Petersburg have no idea of his current whereabouts. His house has been closed since September; if it is searched no useful clues will be found. He is 48, has grey hair and beard, and is 5ft. 9in. tall.

Putting these facts together, the agents (and Weatherby) ought to conclude that Sverdlov's work over the last years has been aimed at the recovery of Alexander's brain, with the intention of implanting it into a new body. It sounds unbelievable, but somebody has stolen Alexander's brain, and presumably has a good reason for doing so. You don't dig in frozen ground in a Siberian winter just to get strange souvenirs.

As soon as this information comes to the attention of Weatherby he will send new orders to the agents; they are to go to St. Petersburg (if they're not there already) and start making enquiries about Sverdlov and his associates. The F.I.B. Regional Office in St. Petersburg will be informed of their presence, and told to provide all facilities if needed. Nevertheless they are not to discuss the purpose of their mission with anyone in St. Petersburg without authorisation - the office has Russian civilian employees who must not be allowed to know of the theft of the brain.

Fear and Loathing in St. Petersburg
Back to contents

St. Petersburg (pop 1,034,000) capital of Russia until the fall of the Tsar; now the Federation's administrative centre for Russia. An imposing city, occupying a dreary, isolated site at the head of the gulf of Finland, on the banks and delta islands (pop 100,000) of the Neva, founded in 1702 by Peter the Great; a large number of bridges span the main stream and its numerous divisions; massive stone quays hold back the waters, but a yearly rise of 18ft. flooded the poorer parts of the city prior to the Federation's construction of new barriers in 1912; the river is ice-bound nearly half the year, and is then given over to sleighing, &c.; the short summer is hot. The city covers nearly 48sq.m.; its former palaces and government buildings, now used by the Federation, for number and grandeur are unsurpassed; Neva View is the finest street in Europe; is the centre of Russian literary, scientific, and artistic life; has a university, numerous academies, cathedral, technical and training colleges, and libraries (the Imperial public Library contained 1,200,000 vols, expanded to 2,000,000 after the Revolution); connected with the Volga basin by a canal, and the centre of four railways, it is the commercial metropolis and chief port of Russia, and carries on half the foreign trade; exports one-fifth of the corn of Russia, besides flax, linseed, leather, petroleum &c.; Imports coal, machinery, &c.; principal manufactures are cotton goods and other textiles, leather, sugar, porcelain goods, &c.
The Federation Encyclopaedia 1916

IF the agents don't yet have the autopsy results they should still guess that some answers may be available in St. Petersburg, and may have an idea that they will find them in the medical and scientific community, but they won't have much to go on.

Enquiries at the station will find nobody who remembers the "ornithologists"; it's the busiest station in Russia, and thousands of people pass through every day. However, the logs of train guards are filed there; if the agents show their identification they will be allowed to read them. The records for train 328 show that it stopped to pick up four passengers, who paid to use sleeping compartments 4J and 4K and had three trunks. The guard from the train is on another run but should be back the next day. If anyone actually speaks to him, he'll eventually remember that one of the passengers complained of a twisted ankle and repeatedly requested ice to keep it cool during the journey to St. Petersburg. This should seem odd, since warm compresses are a more normal form of treatment. He can confirm that any drawings are the passengers, or identify photographs if Sverdlov or any of his allies are known. Given three to four days he will be able to identify all four men from F.I.B. record photographs. Note that nobody from Chita will be able to do this; the guard has an unusually good eye for faces, recognising passengers and dealing with them is part of his job.

Even without knowledge of Sverdlov's identity, the agents should guess that there is a good chance that remnants of the old privileged classes are involved in the plot, or at least funding it; there are still countless millions of roubles unaccounted for despite the confiscation of estates and redistribution of wealth that followed the fall of the Tsar, and it seems certain that some is in the hands of reactionary elements.

The main sources for information are thus the dossiers held by the FIB in St. Petersburg, enquiries amongst Tsarist sympathisers, and the hospitals and universities. Unfortunately St. Petersburg is one of the largest cities in Europe, and without more information it is unlikely they'll learn much. An enquiry for brain surgeons will eventually yield Sverdlov's name, but in the time that takes the autopsy results will probably arrive, and he will become their prime suspect.

The Sverdlov File
Once the agents are looking for information on Sverdlov they'll find that he has a slim dossier, including photographs; the file describes him as "non-political" although he does have an association with the Romanoff family as the neurologist responsible for treating the Tsarevich Nicholas after the 1891 assassination attempt. It concludes that he worked for the Romanoffs for the prestige, and because he felt it was "an interesting case", not out of any special loyalty to the family.

The university hospital has numerous doctors and scientists who remember Sverdlov; most seem to think that he resigned following an argument with Professor Pavlov, the Nobel-winning physiologist, who is one of the directors of the hospital.

If questioned, Pavlov (an elderly scientist now working on the physiology of the endocrine system) can confirm that he has long had differences with Sverdlov, who was excessively secretive about his work and often neglected his patients for research. Things came to a head last year when two of Sverdlov's patients died due to endless delays in what should have been routine operations.

Pavlov also believes that Sverdlov was falsifying data to prevent anyone else using his experimental technique and to cover an unacceptably high failure rate (he has no idea that the animal experiments were uniformly unsuccessful). He has some of the papers on file, as well as early drafts, and can point to places where formulae and strength of solutions may have been changed to conceal the true technique. Even using forensic techniques the real numbers are unclear.

Pavlov confronted Sverdlov with an ultimatum; he must either resign or hand over all his results and notes to a committee selected by the university, which would evaluate the technique and perform several operations. Sverdlov refused to participate in the trials, choosing to resign instead. Two of his research students also quit the college in sympathy. Pavlov can check the records and identify them as Georgi Blok and Fedor Sobchak. "No great loss, they were hardly our brightest stars." Pavlov can't describe them in any detail, but he has seen their (barely acceptable) examination results.

Blok and Sobchak are a new lead; if it is followed up, they will be found to have their own dossiers. Both are listed as possible supporters of the Tsarist cause, hangers-on of the "Young Tsarists", a group of former aristocrats in their thirties and forties who lost family and estates as a result of the Revolution and are now regarded as minor troublemakers by the F.I.B.. Their pictures match the two younger associates of Sverdlov.

The Young Tsarists
Despite the obvious benefits of the Revolution most nations have a small minority who oppose the downfall of Capital and the aristocracy. Russia is an extreme case; thousands of minor aristocrats lost relatives, power, land and fortune in the revolution, and most still resent the loss. In other countries the monarch or president acts as a buffer between the people and the Federation; Russia is ruled directly by the Federation, and many patriots oppose this loss of sovereignty. The Federation's efforts to diminish the Tsarist influence in Russia, and ensure that the Romanoffs never return to power, is also a cause of friction. Accordingly, the F.I.B. routinely monitors groups that might become involved in political or criminal activities supporting the restoration of the Russian monarchy.

The "Young Tsarists" (the name is simply the F.I.B.'s case file reference) are former officers in the Imperial Russian army and their friends, many of them members of the old aristocracy; there is no overt organisation, and to the outside eye they are simply random groups of friends who meet occasionally to dine or drink. Nevertheless there appears to be a pattern of association which includes the recruitment of younger men (such as Blok and Sobchak), with some suggestion of an inner core of members who may be involved in illegal activities. The F.I.B. chart of the "organisation" shows dozens of overlapping circles, with some names in a single group, others in two, three, or more. Known associates of this group have been arrested for illegal ownership and sale of military weapons (such as magazine rifles and machine pistols; the only legal civilian guns are single-shot and double-barrelled shotguns and rifles for hunting, and single-shot rifles and pistols for target sports), illegal use of land, tax evasion, vandalism, and other comparatively minor crimes. It could all be coincidental, of course, between them the Young Tsarists probably know most of the former aristocracy and military in St. Petersburg, and as a class they are probably the group most likely to become involved in such activities.

The files of Blok and Sobchak list them as habitues of the Club Veronica, a waterfront cafe near the old Stock Exchange and the University. Another is Count Boris Galitzine, a blonde man aged 33 who matches the description of Sverdlov's third companion; their photographs can be identified in Chita, by comparison with drawings, or by the guard of train 328.

Galitzine is also a Young Tsarist, and has a voluminous file because he is associated with several of the groups believed to belong to this nebulous organisation - then again, he may simply like to party. However, his file describes three meetings with Blok, Sobchak, and an unidentified fourth man who matches Sverdlov's description, all in September 1917 at the Cafe Veronica.

It's possible that the agents will investigate the Young Tsarists before any of the suspects have been identified. If so give them a list of fifteen or twenty restaurants frequently used by the group, ranging from small taverns to the largest hotels in St. Petersburg. The Cafe Veronica should be about a third of the way down the list. For each of the other restaurants checked roll 2D6, -2 if it is after 7 PM, -3 after 9 PM:

5-
The Young Tsarists are in the restaurant. Nobody who knows anything useful is present, but toasts to the late Tsar and the Grand Duchess Olga, the only survivor of the Romanoff dynasty, should make it clear where their loyalties lie. They should outnumber the agents at least three to one; they are not armed, except with knives and forks, but are drunk enough to start a brawl with chairs and other improvised weapons if it becomes obvious that the agents are snooping. Most of them will recognise a photograph or drawing of Galitzine, they don't know the other suspects.
8-
One of the staff will be able to recognise a sketch of Galitzine; he hasn't been into the restaurant in at least a month. Pictures of Sverdlov, Blok, and Sobchak will not be recognised except at the cafe Veronica. Naturally he is known by his name and title. Given this information it should be possible to identify Blok and Sobchak easily; they should in turn lead the agents to identify Sverdlov.
12
(ignore modifiers, use this result once only) Three criminals who are not connected to the Young Tsarists are discussing plans for a robbery when the agents arrive, and overhear enough to assume that they are there to arrest them. The criminals are wanted men, armed and desperate, facing long prison sentences if caught. They will try to shoot it out. They should be poorer shots than the agents, but there should be plenty of collateral damage (falling chandeliers, exploding bottles and mirrors, innocent bystanders, etc.) for every shot that misses on either side.

At the Cafe Veronica the head waiter can identify Galitzine from a description or sketch, but says he hasn't been in since March. He can also identify the sketches of Sverdlov, Blok, and Sobachak as Galitzine's associates, and can name Blok and Sobachak; he doesn't know Sverdlov's name but thinks that all three have something to do with the university, he's heard them talking about experiments. Incidentally, the head waiter is one of the F.I.B. informers watching Galitzine and the Young Tsarists, and will not appreciate the agents attracting too much attention to him.

Count Boris Galitzine
Galitzine was born near Kiev in 1880, joined the Imperial Army in 1898, and was ranked Major at the time of the Revolution. He was hit by shrapnel during the invasion of Germany, and returned to St. Petersburg for a lengthy convalescence. Before he recovered the Terror ended the war. Casualties in the final battle included his uncle and cousin; as their only surviving relative he inherited the family title. The family lands were confiscated by the Federation.

He lives in an apartment on Millonnaya Ulitsa [Millionaire's Row], about a mile from the Club Veronica; the apartment block and street were once the most exclusive and luxurious in St. Petersburg, but with state ownership of housing and the death of many of the tenants in the war they are now largely middle-class residences. Even so, they are still expensive.

Galitzine has obvious reasons to oppose the Federation and support the restoration of the monarchy, and in the aftermath of the Revolution he was twice arrested; in 1907 for vandalism, defacing one of St. Petersburg's revolutionary monuments, and in 1910 for distributing pro-Tsarist pamphlets. He served six months in prison for the second offence, but has since apparently avoided politics - or learned to be more discreet.

His file notes that he inherited 11,000 roubles, about £1375, and that his lifestyle must cost at least 1500 roubles a year. He has no employment. Some thought should suggest that this is a little implausible; given Federation tax laws no possible investment of 11,000 roubles could pay such high dividends.

A check of his bank account will reveal that he actually spends 2500-3000 roubles a year. His tax records declare less than 25% of his true income since the Revolution; while he has a steady income from his inheritance, most of his money is deposited as cash, its source unstated.

His last withdrawal was ten days ago (just after he returned from Siberia) and nearly emptied the account, the one before that more than a month earlier, also much larger than usual. He writes very few cheques; the last was the yearly rent of 350 roubles for his flat, paid in November.

Comparing his records over several years shows that the largest regular withdrawal is 950 roubles, nearly £119, at the end of June every year. There is no obvious reason for this withdrawal. His safe deposit box is empty.

Galitzine was last seen eight days ago by a neighbour, leaving his apartment with two trunks. If his apartment is searched (F.I.B. agents need no warrant) they will find several trophies for fencing and marksmanship, some from the army and some from recent competitions, and a reproduction of the famous oil painting of the Tsar en route to Siberia (right) with a black frame and mourning veil, and obvious signs that a candle has been burned in front of it. This should make it obvious that he supports the Tsarist cause, as if there were any doubt.

His desk contains a few papers, mostly bills and receipts which reveal nothing useful, and bank statements and cheque stubs going back several years and ending eight weeks ago, which contain all of the information described above except the final withdrawals. Some of the withdrawals have scribbled notes against them; some are self-explanatory: ["gas", "electricity", "cleaner", "dairy"], most are simply initials ("K", "W", "F" and "I" are the most common, all for relatively small amounts) or have no explanation. Since September he has withdrawn nearly 2500 roubles for "S." It should seem likely that "S." is Sverdlov if his name is known. In fact this is simply the tip of the iceberg; Sverdlov has received more than 100,000 roubles in all, mostly spent on expensive chemicals and equipment supplied by his cousin's firm.

The regular June withdrawal is marked "Dacha" [country house]. 950 Roubles would pay the rent on a substantial property. This is unusual; Federation law generally prohibits use of multiple homes, except for short term holiday rentals, and the rent is so high that it it must be in full-time use.

Troubleshooting: If the agents don't look at Galitzine's financial records they may miss these clues. If so the tear-off calendar on his desk should have "dacha rent" for the last day of June, which may encourage them to check the records. If that also fails, the St. Petersburg office should eventually unearth the information while checking his tax records and bank accounts.

If the agents really don't seem to be interested in looking at any records the cleaner, a nosy old biddy, arrives to sweep out the flat. She'll naturally be surprised to see the agents, and will at first think they're burglars, but once reassured she'll suggest that he might have gone off again - "He's only just back from his hunting trip in Siberia, I really don't know how he can afford it!". She thinks he has relatives on Kronstadt, she's noticed labels on his trunks after previous trips. This isn't exactly a subtle clue, but some players need all the help they can get. Other options for tracing him include checking the stations and docks, looking for taxi records, etc.

The Island of Doctor Sverdlov
Back to contents

Kronstadt or Kronshtadt (pop 2100); island in mouth of the Neva formerly defending St. Petersburg. Until 1904 primarily a fortress and armoury, destroyed by the opening shots of the war; now largely depopulated, industries fishing, agriculture, tourism.
The Federation Encyclopaedia 1916

AT this point the agents should know that Galitzine rents a dacha somewhere and pays 950 roubles for it at the end of June. This might not seem very helpful, but since all land is owned by the local authorities it is relatively easy to check records in each of the districts in and around St. Petersburg. It will take a few hours, but most properties can be eliminated because the payment date or amount is different, and most in this price range are occupied by prominent officials and other public figures. Eventually all but one can be eliminated - it's probably best if this happens off stage, with civil servants doing the work - the exception is a large dacha on the coast of the island of Kronstadt, at the mouth of the river Neva. It's listed as the "Veterans of the Revolution Retirement Home". While there are several veterans organisations, it seems unlikely that any of them would have a retirement home on Kronstadt; the island is well out in the Gulf of Finland, and freezing for at least eight months of the year. A clerk at the local land office can recognise Galitzine's photograph if more confirmation is needed. He knows him as Ivan Kuznetsov [John Smith].

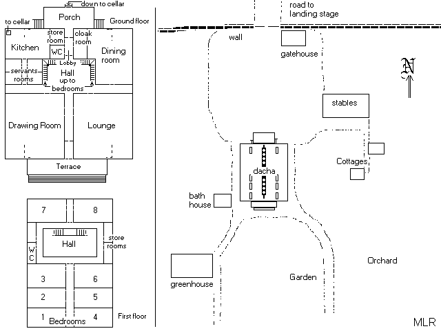
Sverdlov's Base The plans of the dacha and its grounds are on file with the local authorities, and can be made available as soon as it is identified. This ought to help the agents plan a visit.

Kronstadt is an hour or so from St. Petersburg by the daily ferry, a few minutes by airship. The dacha is on the other side of the island from its main harbour. If the agents want to investigate the dacha without attracting attention and tipping off the Tsarists to their presence, they would be best advised to go in by ferry or boat and cross the island on foot, skis, or hired horses.

The main objectives at the dacha should be for the agents to (a) go in without attracting attention, (b) capture Sverdlov and his associates (or learn the truth if one of the variant plots is used), (c) recapture the brain, and (d) find as much evidence as possible for further enquiries. They will probably arrange for the Raphael to be ready to move in on an agreed signal, such as a signal flare, or if there are obvious signs of trouble, but don't suggest this if the players don't come up with the idea.

Troubleshooting: It's possible that the agents will want to go in aboard the Raphael with all guns blazing. This will work, of course, but makes it difficult to find out what's really been happening, or be entirely sure that the plot has been defeated. A shell or two will leave nothing but smoking wood and rubble, with unidentifiable body fragments scattered amongst the wreckage; machine guns are a little less wholesale, but corpses can't easily answer questions. Captain Valois can remind the Field Commander of this, but will go along with whatever scheme is finally chosen. If this is tried the building will catch fire - it is lit by oil lamps - and identification of Sverdlov and the brain will not be 100% certain. Galitzine will somehow escape to cause more problems.

If the agents choose to go in with the Raphael without firing and assume that the occupants of the dacha will surrender they're in for a nasty surprise; Galitzine's men will open fire with all the weapons at their disposal, forcing the Raphael to retreat or retaliate, with eventual results as above.

Agents may think of parachuting into the grounds of the dacha, or dropping down on ropes from the Raphael. The first option is VERY dangerous; while parachutes have been invented, they have never been perfected and it is almost impossible to steer them towards a preferred landing point. Anyone who tries this should have a good chance of ending up in a tree or falling through the roof of the greenhouse, or landing outside the grounds. The second method is a little safer, but although the Raphael is quiet its engines will still make enough noise to wake everyone in the dacha.

Finally, agents may call on the Federation Army detachment in St. Petersburg for troops, and try to take the dacha by sheer weight of numbers. There's nothing wrong with this idea in theory; in practice these are locally recruited Russian troops, and there should be problems organising the attack, possibly a result of Tsarist infiltration; Golitzine, Sverdlov and the brain will somehow escape. To make matters worse, an accurate report of the theft of the brain will soon leak out.

In all confrontations try to use as many 'mad scientist' and 'secret base of conspiracy' tropes as possible; lines such as "but before I kill you I must explain..." and "They all laughed at me at the university..." may be taking it a little too far, but are entirely appropriate to the genre. It is entirely in character, and in genre, for Galitzine to take on one or more agents in a sabre duel, ordering his guards not to interfere. If he is killed the guards will do their utmost to kill the agent responsible, of course, they're not aristocrats with antiquated ideas of honour.

If anyone is captured, staying alive may be an additional objective. If at all possible there should be some suggestion that the brain might be transplanted into one of the agents, not Conrad.

A useful trick, if everyone is captured or pinned down without immediate hope of rescue, is for one of the agents to find a signal flare cartridge in an overlooked pocket. Without a gun firing it will be tricky (using fire tongs to hold it in a flame is one possibility), the flare will then wobble into the sky and summon the Raphael, if the agents have arranged for her to be in the area. With guns and Maxims manned she is a match for anything the Tsarists are likely to throw at her; for a more impressive scene she can be accompanied by several larger Ithuriel-class ships, which give her covering fire for the rescue. The Raphael might also be signalled by starting a fire or some other deliberate or accidental signal.

Sverdlov's base is a coastal dacha set in thirty acres of land enclosed by a high stone wall. There is room for Sverdlov and his accomplice / victim Conrad, a large laboratory, two assistants (who are not in on his scam) and several "guests" (actually guards). More guards occupy cottages originally used by servants and a gate-house at the only entrance, a track leading downhill to a landing stage. All buildings are linked by telephone. All of the guards are trained soldiers and will use cover and tactics intelligently. The outside guards have four huge hunting dogs which are let loose in the grounds at night, or can be used to sniff out intruders by day:

Hunting dog: BODY [4], MIND [1], SOUL [1]
Detective (tracking only) [3], Linguist (Understand Master) [3]
Brawling [7]; Bite, Effect 6, Damage A:F, B:I, C:C
Wounds: B[ ] F[ ] I[ ] I[ ] C[ ]

The plan shows the general layout of the building and grounds; they are lit by oil lamps, the only electricity comes from batteries used in Sverdlov's apparatus and to run the telephones, which are recharged in the stables (see below) as needed. The area North of the building and the paths are smooth gravel (and extremely noisy to walk on), the rest of the grounds are covered with snow. Outside the area shown there are woods, an ornamental pond, etc. The wall is 12 ft. high and topped with broken glass. Needless to say this is no barrier to an air-ship, although the noise would make surprise impossible. Trees hang over the wall at several points, and can be climbed to bypass it.

The gatehouse is a cottage occupied by four guards with a dog; they have an old and highly illegal Maxim gun concealed in a cupboard, but getting it set up will take 5 rounds - it may give flying visitors a nasty surprise! Anyone approaching and asking to be let in will be told that nobody is in residence; since several of the dacha's chimneys are smoking this is easily spotted as a lie. They will not accept bribes to allow anyone in. The other two cottages each house another four guards.

The stables hold eight horses, two carriages, and a four-seater Daimler automobile. The car is rarely used, and the engine has been rigged with cables for charging batteries. Four more guards sleep in the loft above it; three dogs (as above) are kept in one of the stable stalls by day and let out at night.

The bath house is exactly that; a Russian steam bath (much like a sauna) with hot tub and a cold tub outside. There's a wood boiler to heat it and make steam. It's fired up on Wednesday and Saturday nights, otherwise empty. It's a strong building with thick walls and roof, and might be used to imprison captured IBF agents.

The greenhouse is heated by a wood stove; it has some grapes, fruit trees, and flowers, all somewhat neglected.

The dacha is a two-storey wood and stone building built on a timber base, with a large storage space (not shown on the plan) underneath. It is lit by oil lamps throughout (except the cellar, which is normally left dark). Water is pumped from a well, the pump is in the kitchen, sewage is piped to the sea.

Sverdlov's sponsors are not present, and there is no evidence of their identities. Even Sverdlov knows no names. Galitzine has many known associates, but pinning down the source of his funds will be impossible without more evidence. And he will do his utmost to prevent the F.I.B. gaining that information, committing suicide if there is no alternative.

Characters
Back to contents

Colonel Eric Weatherby (Regional F.I.B. Director)
BODY [6], MIND [4], SOUL [3], Business [6], Brawling [8], Detective [6], Linguist (French, Russian, Italian, German, Greek) [6], Marksman [6], Melee Weapon [7], Military Arms [8], Morse Code [6]
Quote: ...and don't mess it up!"
Equipment: Webley revolver (big handgun)
Notes: Weatherby is a meticulous administrator and doesn't suffer fools gladly. He will expect his agents to have coherent plans ready before they go into the field; if not, they need to prove that they are very good at improvisation. He is blind in his right eye and wears a patch; nevertheless he is still occasionally active in the field, wearing a false eye instead of the patch as a simple disguise when necessary.

Captain Tobias Valois (Captain of the Raphael)
BODY [3], MIND [4], SOUL [3], Babbage Engine (navigation) [6], Brawling [5], Linguist (Russian, English, German) [5], Marksman [7], Mechanic [6], Melee Weapon [7], Military Arms [7], Morse Code [6], Pilot [6]
Quote: "That route will take us rather near Irkutsk - I'd suggest going a little further North over Lake Baikal."
Equipment: Magazine pistol (big handgun), lock knife, the Raphael and her crew and equipment
Notes: Valois is an old revolutionary, a former Nihilist and Terrorist who captained one of the original twelve airships of the 1904 war. He presents himself as the modern equivalent of a "plain seafaring man" but is much more; he was a member of the French Inner Circle (while simultaneously a Commander in the French navy) and responsible for two assassinations before the war, and still has high-level contacts in Aeria and the Federation Council. Technically he outranks an F.I.B. Field Commander, and he will pull rank if it seems absolutely necessary. He never talks about the war.

Crew of the Raphael
(All speak English, either as their native language or via the Linguist skill. All are Aerian citizens)
Officers:
Lt. Peter Frobe (navigator): Babbage engine (navigation) [7], Morse Code [6], Pilot [6]
Lt. Robert Glossop (chief engineer): Mechanic [8], Pilot [5], Science (aeronautics) [7]
Lt. Alfred Jones (gunnery officer): Mechanic [7], Mil. Arms [8], Marksman [7]
Dr. Jack Wilson (doctor): Doctor [6], First Aid [7], Science (pharmacology) [6]
Gerald Nixon (midshipman): Mil. Arms [5], Morse Code [5], Pilot [5]
Men:
Gunther Voss (cook / gunner): Artist (chef) [5], Brawling [7], Military Arms [6]
Alex Rabinowicz (engineer / gunner): Brawling [7], Mechanic [7], Military Arms [6]
Ed Goddard (steward / gunner): Brawling [5], Military Arms [9], Marksman [8]
Percy Thipps (engineer / gunner): Brawling [5], Mechanic [6], Military Arms [5]
Brian Todd (helmsman): Actor (card tricks) [8], Military Arms [5], Pilot [6]
Leon Kurtz (helmsman): Brawling [6], Melee Weapon [6], Military Arms [6], Pilot [7]
Natasha (ship's cat): Brawling [3], Effect 4, A:B, B:F, C:F

Herbert McCone (Mining engineer)
BODY [3], MIND [4], SOUL [2], Brawling [6], Marksman [5], Mechanic [6], Melee Weapon [5], Military Arms (explosives only) [7], Riding [6], Scientist (Geology, Petrology) [6]
Quote: "Och, a wee pint or two of nitro there and she'll come down like a stack of cards, do ye ken?"
Equipment: Explosives, fuses, detonators, rock drill, miner's helmet lamp, spades, picks, etc.
Notes: McCone was born in Scotland but now lives in Aeria; he has been assigned to the mission and expects to run the demolition side of the operation with a minimum of interference. He has never been asked to hide the fact of an explosion before, and this may be a weakness in his work; without careful supervision he may end up leaving dynamite wrappers (with English labels), cables, drill tips and other tell-tale debris on the site.

Russian Thugs (former soldiers)
BODY [4], MIND [2], SOUL [2], Brawling [6], Marksman [5], Melee Weapon [6], Military Arms [4], Riding [4]
Quote: (in Russian) "Get them!"
Equipment: Large shotgun or Magazine rifle, ammunition, big knife, access to horses, guard dogs
Notes: Former corporals and sergeants in the Imperial Army, they are trained to obey orders; all somehow survived the war and are now working for Sverdlov or the aristocrats who employ him. Some of their weapons are illegal under Federation law, which permits basic breech-loading hunting rifles and shotguns only.

Professor Iosef Sverdlov (Eccentric "genius")
BODY [3], MIND [6], SOUL [2], Doctor [8], Actor (sleight of hand) [6], First Aid [8], Linguist (English, French, German) [6] Marksman [7], Science (Biology, Biochemistry) [7], Riding [6], Thief [5]
Quote: "Now we add two drops of the radium salt..."
Equipment: small revolver, the resources of a well-stocked laboratory.
Notes: Sverdlov is genuinely a skilled scientist, but for the moment he is primarily a cunning fraudster. If caught between Tsarist sympathisers and Federation agents he will try to play the sides against each other, claiming that he was forced to help the other.

Georgi Blok, Fedor Sobchak (Sverdlov's Assistants)
BODY [4], MIND [3], SOUL [2], Brawling [6], Marksman [5], Mechanic [4], Melee weapon [6], Science (Biology, Biochemistry) [4], Riding [6]
Quote: "The Professor is a genius..."
Equipment: The resources of a well-stocked laboratory.
Notes: These are two of Sverdlov's students, hand-picked for Tsarist sympathies and relatively poor skills - Sverdlov is sure he can put anything past them because they defer to him on all scientific matters. They are the two brown-haired men who accompanied him to Siberia.

Count Boris Galitzine (Commander of the Tsarists)
BODY [4], MIND [4], SOUL [3], Artist (poet) [6], Brawling [7], Drive [6], Marksman [8], Melee Weapon (sabre, epee) [8], Military Arms [6], Riding [7]
Quote: (in Russian) "Come on, do you want to live forever!"
Equipment: cavalry sabre, revolver, cyanide capsule.
Notes: Galitzine's family was annihilated in the war; he seeks revenge in any plot that will help the Romanoff dynasty against the Federation. He is an expert swordsman, gambler, and shot. He accompanied Sverdlov to Siberia; he is the blonde "ornithologist". He is becoming a little suspicious of Sverdlov, and makes frequent requests for more progress. He will try to lead the guards to victory if there is a fight, but will know if the odds are hopeless. If at all possible he should somehow escape to become a recurring foe of the agents; if not he will commit suicide to avoid interrogation. In the privacy of the dacha and its grounds he sometimes wears his Imperial Russian Army uniform.

Conrad (An "imbecile" - actually a cunning actor)
BODY [4], MIND [4], SOUL [5], Actor (impersonation) [7], Brawling [6], Scholar (Romanoff history, Life of Alexander, Russian history) [6]
Quote: (in Russian, before operation) "Coming, master!" (after operation) "Is this body the best you can find for one of my blood?"
Equipment: Various books on the Romanoffs, concealed in his room, switchblade knife (also concealed).
Notes: Conrad will play the imbecile before the faked operation, then will try to play the role of Alexander Romanoff, slowly recovering from an extraordinarily traumatic event.

Variations
Back to contents

THERE are three variations on this plot; two are minor and mostly affect the final scenes, the third will require a lot of work by the referee:

Experience
Back to contents

WITH the exception of the final section this isn't a dangerous adventure, unless the players choose to make it so. Bonus points should be awarded primarily for completing the mission and avoiding any complications which publicise the theft of Alexander's brain, or the Federation's attempt to obliterate his grave. Playing in genre ("Nobody move, this is the F.I.B.!") while taking on the Federation's attitude to Tsarists etc. should be rewarded. Opposition to the mission should also be rewarded if it is justified by an agent's background - for example, an agent might secretly be a Tsarist sympathiser and work to derail the mission, or may simply feel that the mission is ill-conceived and likely to lead to more problems than it solves.

Give each player a piece of paper. At the end of the adventure the other agents should write down a rating of the Field Commander's leadership from -1 (a liability) to +3 (excellent). Average these ratings (round up) and add the average to the Field Commander's bonus points. If the average is 2 or more and nothing has happened to make the F.I.B. unhappy with the Field Commander the rank should be made permanent. Simultaneously the Field Commander should rate each of the other agents for their work in the mission from -1 (a liability) through 0 (unhelpful) to +3 (an asset to the mission). These points should be added to the bonus for each agent. Remind players that they should rate the agents on what their character knows about them - it's possible that someone who has tried to sabotage the mission could still look good to the other agents.

All agents should be rewarded / penalised for the following outcomes:
Nobody outside the F.I.B. knows that the brain was stolen.+2
The brain was recovered and proved to be dead+1
Alexander's grave was obliterated successfully+1
The damage was blamed on Tsarists / illegal miners+1
Sverdlov is taken alive and admits the truth+1
The theft of the brain becomes common knowledge-2
The grave obliteration was botched-2
Sverdlov and the brain are not recovered-2
The mission is completely bungled-5
Additionally, the agents should be penalised for any innocent bystanders killed as a direct or indirect result of their actions; for example, if the tribesmen are killed in Siberia all agents should be penalised. Divide the number of victims by the number of agents (round UP) and subtract the result from the agents' bonus points. For example, if five agents are responsible for the death of 22 innocents deduct 22/5 rounded up = 5 points from each agent's bonus, unless the agent was in no way involved or made an honest attempt to stop the massacre. Double this penalty for the Field Commander!

Changes will be needed if any of the variant plots are used.

Further Adventures
Back to contents

THE F.I.B. is very useful as a springboard into adventures if the players are happy in the role of members of a law enforcement team. If they are acting outside the law the F.I.B. should be an almost omniscient threat to their plans, turning up to derail cunning plans to restore the Tsar or make money illegally.

An obvious sequel to this adventure is a hunt for Galitzine (if he escaped) or the source of his funds (if he was killed or committed suicide to escape questioning). This should lead through several layers to a seriously powerful Fiendish Tsarist Plot, and some of the lost millions of roubles that were hidden during the Revolution. Smashing it should be a major (and extremely dangerous) achievement; however, there should be evidence that there are other plots at work, and destroying one won't affect the others.

For a change of pace, the Tsar's supporters aren't the only problem; there are still everyday criminals, everything from petty crooks to well-organised criminal empires. See, for example, The Godfather by Mario Puzo and the TV series The Sopranos. Cracking these gangs open shouldn't be easy, but their corruption can't be allowed to go unpunished. Alternatively, a criminal adventure set in this world would have some unusual problems; Special Agents equipped with air-ships, artillery and Maxim guns are a formidable challenge for any crime boss. Unless they can find a way to retaliate in kind...

Aeria has no crime, but if one were to occur, who would be called in to handle it? It might be unfortunate if the F.I.B.'s top agents weren't cleared for the secrets that are likely to be found in Aeria.

Adventure 3 also involves the F.I.B.